Nella rinomata località di Porto Cesareo, all'interno del residence Le Chiusurelle sito a Torre Lapillo, proponiamo in vendita soluzione rifinita ed interamente arredata posta su tre livelli con ampia veranda coperta, terrazza e piccolo scoperto di esclusiva pertinenza;
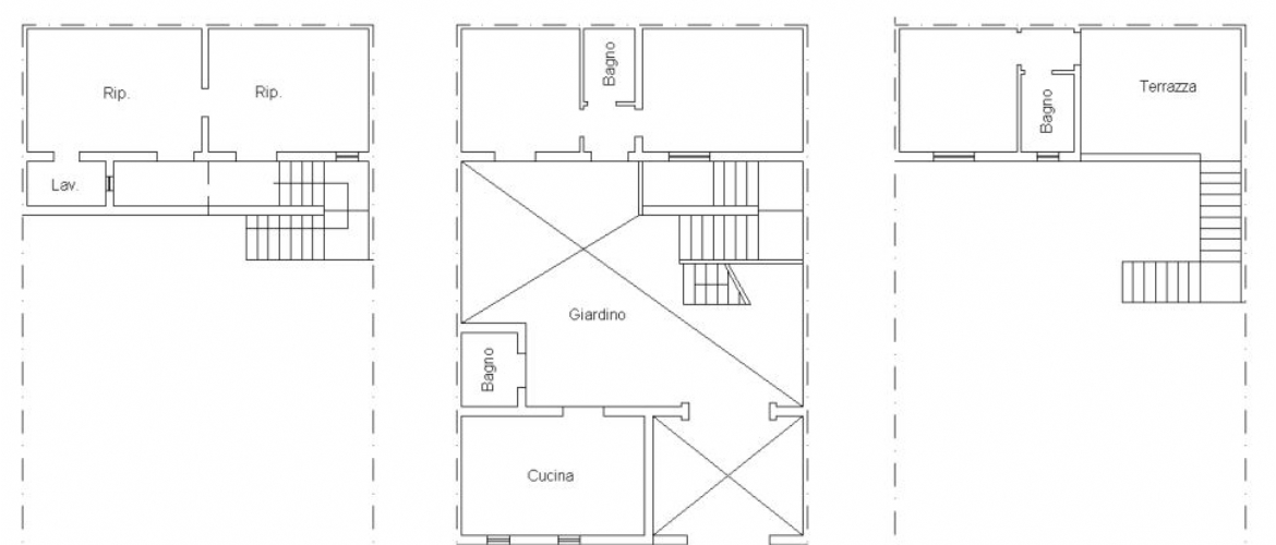
L'immobile sviluppa complessivamente 130 mq commerciali disposti tra i tre piani della villetta ed è composto al piano S1 da due comode camere da letto matrimoniali servite da bagno con doccia, al piano terra da una cucina abitabile, un bagno con doccia esterno, due camere di cui un'ampia matrimoniale, una seconda letto da adibire a matrimoniale o doppia dipende dall'armadio, bagno con doccia a servizio delle due camere e completa il piano una splendida veranda con copertura in legno in cui trascorrere piacevoli giornate e serate estive; la proprietà si completa con il 1° piano a cui si accede da scale esterna dal piano terra, composto da un monolocale con camera da letto, bagno e terrazza di esclusiva pertinenza.
La soluzione dispone in ultimo di un posto auto riservato all'interno del residence.
Ottima soluzione per vivere in famiglia le proprie vacanze in un contesto ben servito, forte attenzione alla cura del verde, all'interno del residence è presente una grande piscina, bar, ristorante, campo da calcio e da tennis, teatro per allietare le vostre serate con eventi di intrattenimento.
Il residence è situato ad appena 2 km dalle splendida costa.
Per Info & Visita Agenzia Immobiliare Eden Real Estate di Lecce.
Tipo contratto: | Vendita |
Tipologia: | Ville |
Provincia: | LE |
Comune: | PORTO CESAREO |
Quartiere/Via: | sp 109 |
Zona: | TORRE LAPILLO |
Condizioni: | ottimo Stato |
Piano: | Terra +1 + S1 |
Box: | POSTO AUTO |
Riscaldamento: | Assente |
Giardino: | Scoperto di esclusiva pertinenza |
Balconi e terrazze: | si coperta |
Disponibilità: | Immediata |
A.P.E. : | D |
Via Comunale Giacco, Poggiardo